Lotes de 480m² Paraje El Taladro, Cañuelas.

direccion Calle Angelini Y C. Nicolas Cisneros. Cañuelas., El Taladro

volver Volver al listado
left
right
left
right

Venta

USD 16.000

  • Destacado Destacado
  • Oportunidad
Codigo Código de propiedad: LO-00136#
  • Tipo de propiedad Lotes / Terrenos
  • Disposicion Disposicion Frente
  • Orientacion Orientación Sur-este
  • Superficie total Sup. total 480m2
  • Estado Estado Excelente

Acerca de la propiedad

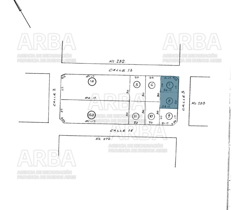
Lotes de 20 Mts. de frente por 24 Mtsde fondo TOTAL= 480 M2 Barrio "El Taladro" , partido de Cañuelas. 
Los mismos se encuentran a 900 Mts. de Ruta Nacional 205. Calle Salvador Angelini y C. Nicolas Cisneros. 

"¡Descubre el paraíso rural! A solo 7 kilómetros de la ciudad de Cañuelas, accesible por Ruta Nacional N°205, se encuentra Paraje El Taladro. 

Este hermoso lugar ofrece una oportunidad única para aquellos que buscan escapar del ajetreo de la ciudad y conectarse con la naturaleza. Los lotes están diseñados para proporcionar un estilo de vida tranquilo y relajado, rodeado de paisajes naturales y atardeceres impresionantes. 

Además, su ubicacion es ideal para disfrutar de la oferta turística de la región. A solo 10 km Encontrarás lugares como Urielarrea, un destino gastronómico y cultural que ofrece una variedad de opciones los fines de semana. Disfruta de la música en vivo, ferias artesanales y degusta la deliciosa comida local. 

No te pierdas la oportunidad de adquirir un lote en este hermoso paraje y hacer de este lugar tu hogar soñado. ¡Contactanos para obtener más información y comenzar a vivir la vida que siempre has deseado!" 

Los datos medidas y demas informacion que figuran en el siguiente aviso son meramente descriptivo para facilitar su mejor conocimiento de la propiedad. Dejando constancia de que pueden surgir diferencias por falta de concondarcia con las 
medidas de la escritura y/o con los planos aprobados de la propiedad 
Los valores pueden estar sujeto a verificación o ajuste.

Comodidades

Ver más

Ubicación

Servicio brindado por

buscadorprop

Todos los derechos registrados:

grupotodo
whatsapp Whatsapp email Contactar telefono Llamar
Chatea con nosotros whatsapp